
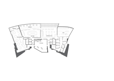
Project Description:
The studio's brief provided students with floor plans of Aveo Bella Vista, Australia, and asked students to choose a 5-star hotel to research and create efficient design solutions for high-end hospitality. Students can choose their location in Phnom Penh, Cambodia. The Hotel was to include 122 rooms, a Buffet hall, Event halls, Restaurants, Sky bar, a Swimming pool, and other essential hotel facilities.
​
The location was chosen because it has a beautiful river view of the Bassac River and the Mekong River, which has the best view of Phnom Penh City.
The design concept of this hotel aims to mixed Neoclassical style and Art Nouveau style by mixing classical and modern furniture, along with using marble as the main material to follow the brand design feature, and exhibits traditional Chinese and Cambodian architectural wooden artworks in some areas.
​












